LANGUAGE

Centro de productos JMA crea el futuro

JMA ALUMINUM FORGE THE FUTURE

Brindar productos de aluminio y servicios profesionales de alta calidad y humanizados
Para edificios de alta gama y equipos importantes de China y del mundo

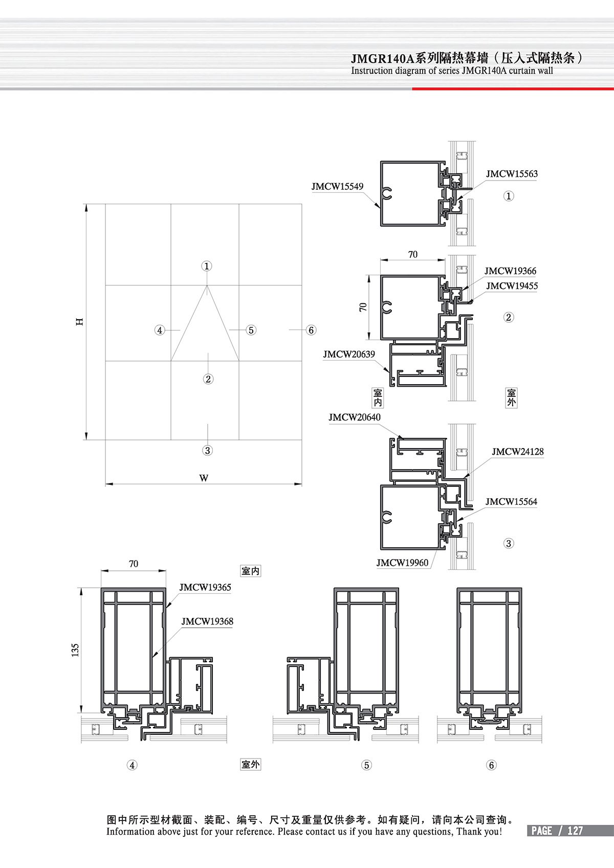
Inicio - Centro de productos - Muro cortina - Thermal Break Series - Thermal break curtain wall of series JMGR140A
岳池县| 赤水市| 千阳县| 石嘴山市| 衡南县| 漾濞| 双辽市| 鹿邑县| 金坛市| 武汉市| 神池县| 西藏| 钟山县| 湘乡市| 故城县| 岚皋县| 德庆县| 连山| 黎川县| 竹北市| 拉萨市| 鸡西市| 克拉玛依市| 黄山市| 曲阳县| 哈密市| 台北市| 建平县| 仁化县| 杭锦后旗| 富平县| 宿州市| 兴山县| 晴隆县| 九台市| 桂平市| 榕江县| 兴安盟| 金华市| 永川市| 高淳县|