-
Casement door sections GR63A series
-
Casement door sections GRU55 series
-
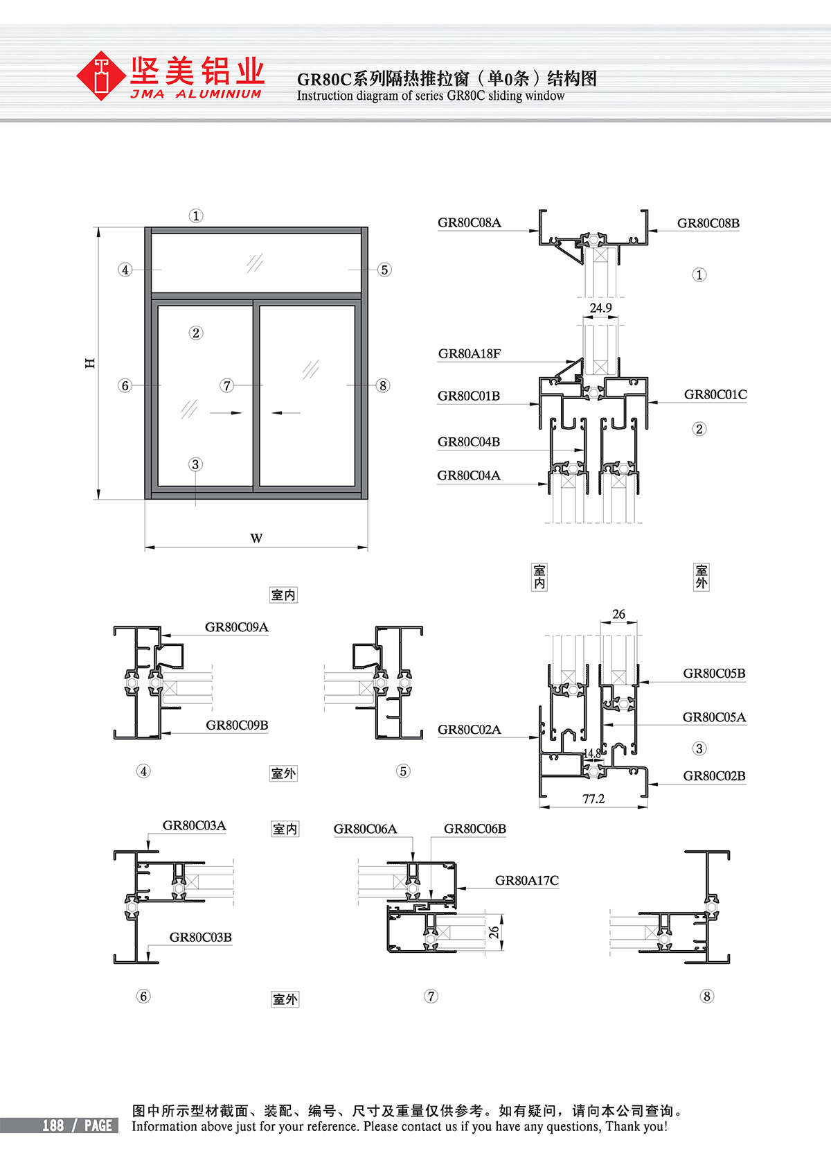
Sliding window sections GR80C series
-
Sliding window and door sections Z.J90 series
-
Casement window sections GR65E series
-
Casement door sections GR55 series
-
Sliding window sections GR83 series
-
Sliding window sections ZJ90-6 series
-
Casement window sections GR65G series


